Presentan anteproyecto para construcción del edificio de las escuelas Papernó y Chimeno Codó
El concejal Martín Serrano presentó ante la DGE anteproyecto para construcción del edificio de las escuelas Papernó y Chimeno Codó.
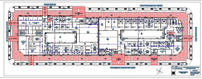
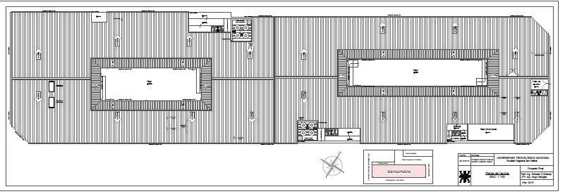
En 2017, el concejal Martín Serrano (UCR – FCM) presentó un proyecto, aprobado por el HCD, por el que solicita a Infraestructura Educativa, dependiente del Ministerio de Economía, Infraestructura y Economía, la construcción de un edificio para el funcionamiento de las escuelas Nicolás Papernó y Eduardo Chimeno Codó en un terreno cedido por la Municipalidad de San Rafael.
El proyecto surgió de la iniciativa de María Florencia Prósperi y Adelina Serrano, alumnas de la carrera de Ingeniería Civil de la UTN San Rafael, el que fue presentado como trabajo final (tesis).
El concejal Martín Serrano se reunión con el Delegado Administrativo de la DGE – Zona Sur, prof. Marcelo Cunqueiro, a quien hizo entrega de este trabajo que incluye una investigación y diagnóstico, planos y diseños respectivos.
“Esta idea le otorgaría a la comunidad educativa de ambas escuelas, un lugar propio y adecuado a las necesidades de los alumnos y personal docente y no docente,” explicó el concejal Serrano. “En la actualidad funcionan en locales alquilados.”
“Recordemos que estas escuelas trabajan con necesidades educativas especiales, y tienen como principal objetivo, la capacitación de jóvenes con trastornos de aprendizaje y así insertarlos laboralmente según sus posibilidades”.
El terreno cedido por el municipio según ordenanza 12348, tiene una superficie total de 3360,45 m2.







